Помещение свободного назначения 5500 м²

Свободного назначения
ID: 147478
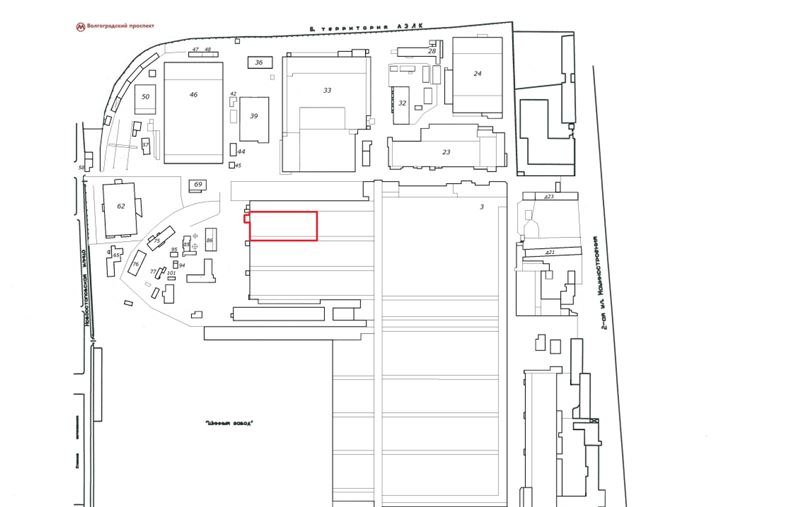
Москва, Шарикоподшипниковская улица
5500 м2
Площадь
1
Этаж

Описание

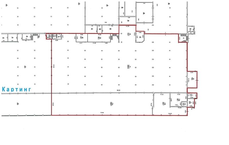
Сдается в аренду помещение свободного назначения общей площадью 5500 кв.м. Расположение: Шарикоподшипниковская улица, 13с3.

Описание помещения:
• Этаж - 1
• Отделка: пол - бетон, плитка; требуется ремонт
• Шаг колонн: 6 х 12 м, один пролет шириной 15,2 м без колонн
• Потолки – 6 м до низа ферм, 9 м до верха фонарей
• Для проведения коммуникаций предоставляются ближайшие точки для подключения
• Электрическая мощность – необходимое количество
• Две проходные по пропускам

Описание здания:
• Наземная охраняемая парковка
• Круглосуточная охрана территории

Условия аренды:
• Арендная ставка - 12000 за 1 кв.м. в год
• НДС включен
• Договор – аренда от компании собственника
• Срок аренды – 11 месяцев с пролонгацией, возможен долгосрочный договор
• Предоставление арендных каникул для ремонта
• Предоставление юридического адреса на время аренды
• Коммунальные услуги и страхование оплачиваются дополнительно
• Оплата – авансовая ежемесячная
• Страховой депозит - 2 месяца
Москва, Шарикоподшипниковская улица
12 000 ₽
кв.м. за год
Контактные данные
Похожие помещения