Офисное помещение 332 м²

Офисы
ID: 147520
Москва, Зеленоград, 4922-й проезд
332 м2
Площадь
2
Этаж

Описание

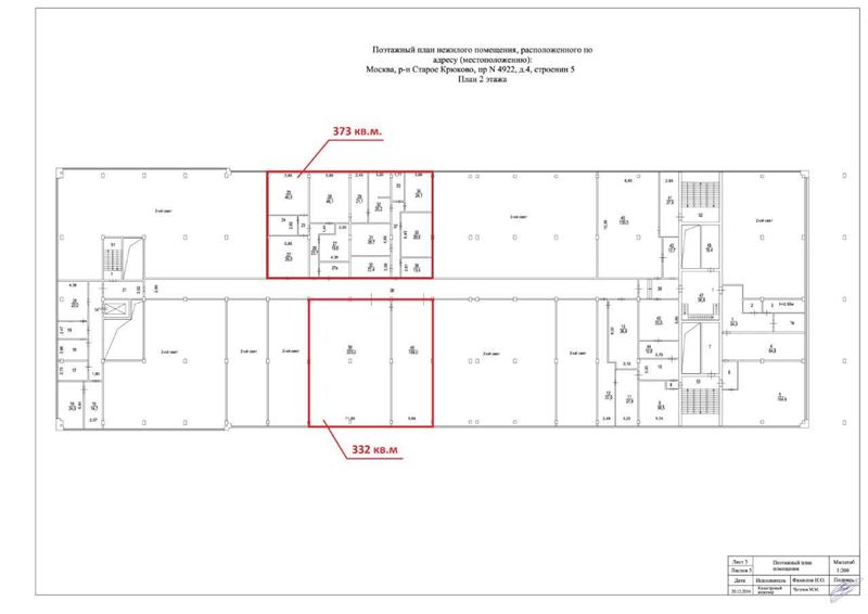
Сдается помещение общей площадью 332 кв.м. Оно располагается на территории технопарка "ЭЛМА". Есть возможность создания офисного блока вместе с помещением общей площадью 373 кв.м. Помещения соседние, выделены на планировке красным цветом. Помещения с хорошим ремонтом, также остается мебель – столы, перегородки стеклянные.

Пол – керамогранит, стены – оштукатурены и окрашены, освещение – трековые светодиодные светильники.

Нагрузка на перекрытие – 500 кг.
Коммуникации центральные. Наличие с/у, воды и канализации в помещении. Электрическая мощность от 30 кВт (запас мощностей в Технопарке большой, предоставляется по запросу)

Ставка – 1500 р/м2 без НДС + 110 р/м2 без НДС (эксплуатация). Коммунальные услуги оплачиваются отдельно по счетчикам.
Москва, Зеленоград, 4922-й проезд
1 500 ₽
кв.м за месяц
Контактные данные
Похожие помещения