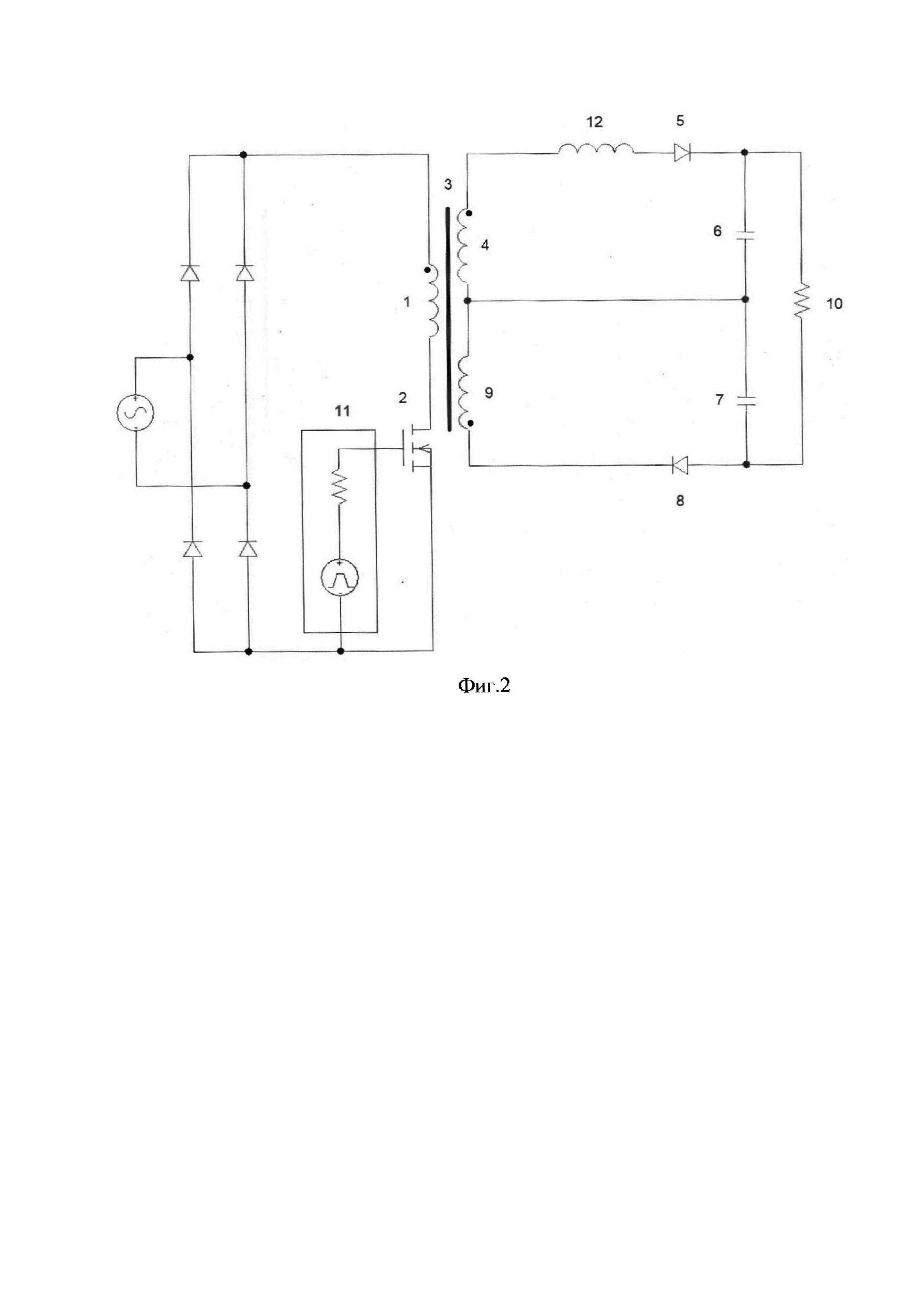
Изобретение относится к электротехнике, в частности, к преобразователям переменного напряжения в постоянное напряжение, и может быть использовано в системах вторичного электропитания для коррекции коэффициента мощности, преобразования и регулирования постоянного выходного напряжения. Технический результат - формирование постоянного выходного напряжения из переменного входного напряжения с помощью одного преобразователя напряжения, объединяющего в себе функции повышающего регулятора (Boost Converter) и преобразователя постоянного напряжения в постоянное (DC-DC Converter), осуществляющего электрическую развязку и получение требуемого уровня постоянного выходного напряжения, обеспечение синфазности тока с переменным напряжением, упрощение цепи управления преобразователем напряжения, улучшение показателей корректора коэффициента мощности. Устройство содержит первичную обмотку 1 силового трансформатора 3, подключенную через регулирующий ключ 2 реализованный в виде (MOSFET), управляющий электрод которого подключен к широтно-импульсному контроллеру 11 и выводам выпрямительного моста, вторичные обмотки 4, 9 которого через выпрямительные диоды 5, 8 подключены к последовательно включенным конденсаторам фильтра 6, 7, параллельно которым включена нагрузка 10. В предлагаемом корректоре коэффициента мощности начало первичной обмотки 1 силового трансформатора 3 соединено с положительным полюсом выпрямительного моста, второй полюс которого через регулирующий ключ 2 подключен к отрицательному полюсу выпрямительного моста. С началом вторичной обмотки 4 силового трансформатора 3 соединен анод выпрямительного диода 5, катод которого подключен к одному из выводов конденсатора 6. Второй вывод конденсатора 6 подключен к концу обмотки 4. Конец обмотки 4 подключен к одному из выводов конденсатора 7, второй вывод которого подключен к аноду выпрямительного диода 8, катод которого подключен к началу обмотки 9, конец которой подключен к концу обмотки 4. Параллельно последовательно включенным конденсаторам 6 и 7 включена нагрузка 10. Управляющий электрод регулирующего ключа 2, подключен к широтно-импульсному контроллеру 11. 2 з.п. ф-лы, 4 ил.
1. Корректор коэффициента мощности, содержащий дроссель, обмотка которого через регулирующий ключ подключена к выходным выводам выпрямительного моста, вход которого подключен к источнику входного переменного напряжения, параллельно регулирующему ключу включена цепь, состоящая из последовательно соединенных конденсатора и первичной обмотки трансформатора, отличающийся тем, что введены два диода и два последовательно соединенных конденсатора фильтра, трансформатор содержит две встречно последовательно соединенные вторичные обмотки, первая из которых через первый диод подключена к первому конденсатору фильтра, а вторая вторичная обмотка трансформатора через второй диод подключена к второму конденсатору фильтра, крайние выводы цепи из последовательно соединенных конденсаторов фильтра, соединены с разноименными полюсами соответствующих диодов и являются выводами для подключения нагрузки, а к управляющему электроду регулирующего ключа подключен управляющий широтно-импульсный контроллер. 2. Корректор коэффициента мощности по п. 1, отличающийся тем, что введена дополнительная линейная индуктивность, включенная последовательно с вторичной обмоткой трансформатора, работающей на интервале времени включенного состояния регулирующего ключа. 3. Корректор коэффициента мощности по п. 1, отличающийся тем, что между крайними выводами цепи из последовательно соединенных конденсаторов фильтра и выводами для подключения нагрузки введен дополнительный многозвенный фильтр, выполненный из последовательно соединенных Г-образного LC-фильтра, параллельного резонансного контура, состоящего из одного или нескольких звеньев, и дополнительного конденсатора, параллельно которому включена нагрузка.
Изобретение относится к электротехнике, в частности, к преобразователям переменного напряжения в постоянное напряжение, и может быть использовано в системах вторичного электропитания для коррекции коэффициента мощности, преобразования и регулирования постоянного выходного напряжения. Известны корректоры коэффициента мощности [Robert W. Erickson Fundamentals of Power Electronics стр. 603 Фиг. 17.11]. Недостатком известных корректоров коэффициента мощности является использование двухкаскадных устройств, включающих в себя повышающий регулятор (Boost Converter), к выходу которого подключен преобразователь постоянного напряжения в постоянное (DC-DC Converter), осуществляющий электрическую развязку и получение требуемого уровня выходного напряжения. Вторым недостатком известных корректоров коэффициента мощности является сложность управлениям таким корректором коэффициента мощности. Наиболее близок по технической сущности к предлагаемому устройству корректор коэффициента мощности, приведенный в книге [Robert W. Erickson Fundamentals of Power Electronics стр. 603 Фиг. 17.11], в котором к источнику переменного напряжения через выпрямительный мост подключен корректор коэффициента мощности, включающий в себя повышающий регулятор (Boost Converter) со своей схемой управления, к выходу которого подключен преобразователь постоянного напряжения в постоянное (DC-DC Converter), осуществляющий электрическую развязку и получение требуемого уровня постоянного выходного напряжения, к которому подключена нагрузка со своей схемой управления. Недостатками этого корректора коэффициента мощности являются использование двух каскадов преобразования электрической энергии, включающих в себя повышающий регулятор (Boost Converter) и преобразователь постоянного напряжения в постоянное (DC-DC Converter), осуществляющий электрическую развязку и получение требуемого уровня постоянного выходного напряжения, а также необходимость использования двух устройств управления повышающим регулятором (Boost Converter) и преобразователем постоянного напряжения в постоянное (DC-DC Converter), что создает сложность управления таким корректором коэффициента мощности. Цель изобретения - формирование постоянного выходного напряжения из переменного входного напряжения с помощью одного преобразователя напряжения, объединяющего в себе функции повышающего регулятора (Boost Converter) и преобразователя постоянного напряжения в постоянное (DC-DC Converter), осуществляющего электрическую развязку и получение требуемого уровня постоянного выходного напряжения, обеспечение синфазности тока с переменным напряжением, упрощение цепи управления преобразователем напряжения, улучшение показателей корректора коэффициента мощности. Поставленная цель достигается тем, что вместо повышающего регулятора (Boost Converter) к выходным зажимам выпрямительного моста, подключается первичная обмотка трансформатора с последовательно включенным регулирующим ключом, вторичные обмотки которого через выпрямительные диоды подключены к емкостным фильтрам и нагрузке, а управляющий электрод регулирующего ключа подключен к устройству управления. На фиг. 1, 2, 3 и 4 показаны принципиальные электрические схемы вариантов выполнения предлагаемого корректора коэффициента мощности. На фиг. 1 представлена принципиальная электрическая схема корректора коэффициента мощности; на фиг. 2 представлена принципиальная электрическая схема корректора коэффициента мощности с введением дополнительной линейной индуктивности последовательно с одной из вторичных обмоток трансформатора; на фиг. 3 представлена принципиальная электрическая схема корректора коэффициента мощности с введением дополнительной линейной индуктивности, включенной параллельно одной из обмоток трансформатора, например, вторичной обмотке; на фиг. 4 представлена принципиальная электрическая схема корректора коэффициента мощности с введением дополнительного многозвенного фильтра. В нем (фиг. 1) начало первичной обмотки 1 силового трансформатора 3 соединено с положительным полюсом выпрямительного моста, второй полюс которого через регулирующий ключ 2 подключен к отрицательному полюсу выпрямительного моста. С началом вторичной обмотки 4 силового трансформатора 3 соединен анод выпрямительного диода 5, катод которого подключен к одному из выводов конденсатора 6. Второй вывод конденсатора 6 подключен к концу обмотки 4. Конец обмотки 4 подключен к одному из выводов конденсатора 7, второй вывод которого подключен к аноду выпрямительного диода 8, катод которого подключен к началу обмотки 9, конец которой подключен к концу обмотки 4. Параллельно последовательно включенным конденсаторам 6 и 7 включена нагрузка 10. Управляющий электрод регулирующего ключа 2, подключен к широтно-импульсному контроллеру 11. На фиг. 2 последовательно с началом вторичной обмотки 4 включена линейная индуктивность 12. На фиг. 3 параллельно вторичной обмотке 4 силового трансформатора 3 подключена дополнительно введенная линейная индуктивность 13. На фиг. 4 параллельно последовательно включенным конденсаторам 6 и 7 включен дополнительно введенный фильтр, составленный из последовательно соединенных Г-образного LC-фильтра 14, параллельного резонансного контура 15, число которых может быть и больше одного и конденсатора 16, параллельно которому включена нагрузка 10. Принцип действия предлагаемого корректора коэффициента мощности рассмотрим исходя из предположения идеальности ключевых элементов, установившегося режима работы и непрерывности изменения магнитного потока в сердечнике трансформатора 3. Обозначим через Допустим, что в момент рассмотрения работы корректора коэффициента мощности от источника переменного напряжения поступает положительная полуволна синусоидального напряжения, которая выпрямляется выпрямительным мостом. В этом случае на этапе замкнутого состояния DT ключа 2 протекают одновременно два процесса, один из которых связан с накоплением энергии в индуктивности намагничивания трансформатора 3, включенного последовательно с ключом 2 и источником выпрямленного переменного напряжения, а второй процесс связан с прямой передачей энергии в нагрузку через прямосмещенный выпрямительный диод 5 и вторичную обмотку 4. Величина тока через выпрямительный диод 7 определяется балансом зарядов конденсатора 6 на интервалах времени После выключения ключа 2 на интервале времени Разделение функций вторичных обмоток трансформатора 3, действующих на интервалах времени DT и (1-D)T, позволяет более эффективно управлять электромагнитными процессами преобразователя напряжения. При изменении полярности источника входного напряжения все описанные выше процессы повторяются. Сумма напряжений на конденсаторах 6 и 7 является выходным напряжением на нагрузке 10. Введение дополнительной линейной индуктивности 12 последовательно с вторичной обмоткой 4 трансформатора 3 (фиг. 2) позволяет эффективно ограничить максимальный ток через диод 7 и обеспечить включение регулирующего ключа 2 на нулевое значение тока. Введение дополнительной линейной индуктивности 13, включенной параллельно вторичной обмотке 4 силового трансформатора 3 (фиг. 3) позволяет ослабить жесткую связь индуктивности намагничивания силового трансформатора 3 с числом его витков, геометрией и зазором. Низкочастотный источник переменного входного напряжения вносит дополнительные низкочастотные пульсации в выходное постоянное напряжение, что нежелательно для ряда нагрузок, например, светодиодных осветительных приборов, что устраняется введением дополнительного многозвенного фильтра (фиг. 4), составленного из Г-образного LC-фильтра 14, одного или нескольких звеньев параллельных резонансных фильтров 15 и емкостного фильтра 16. Таким образом, предлагаемый корректор коэффициента мощности позволяет по сравнению с известным устройством осуществить в одном силовом блоке электрическую развязку выходного постоянного напряжения от переменного входного напряжения, обеспечить синфазность тока и переменного входного напряжения, обеспечить включение регулирующего ключа на нулевой ток, ослабить или исключить низкочастотные пульсации в выходном постоянном напряжении и упростить управление корректором коэффициента мощности.