патент
№ RU 2728001
МПК B03B9/00

ТЕХНОЛОГИЧЕСКАЯ СХЕМА РЕГЕНЕРАЦИИ ОТРАБОТАННОГО ГРАНАТОВОГО ПЕСКА ОТ ГИДРОАБРАЗИВНОЙ РЕЗКИ

Авторы:
Матвиенко Владимир Владиславович Федорчук Юрий Митрофанович Добрынин Андрей Валентинович
Все (4)
Номер заявки
2020112661
Дата подачи заявки
27.03.2020
Опубликовано
28.07.2020
Страна
RU
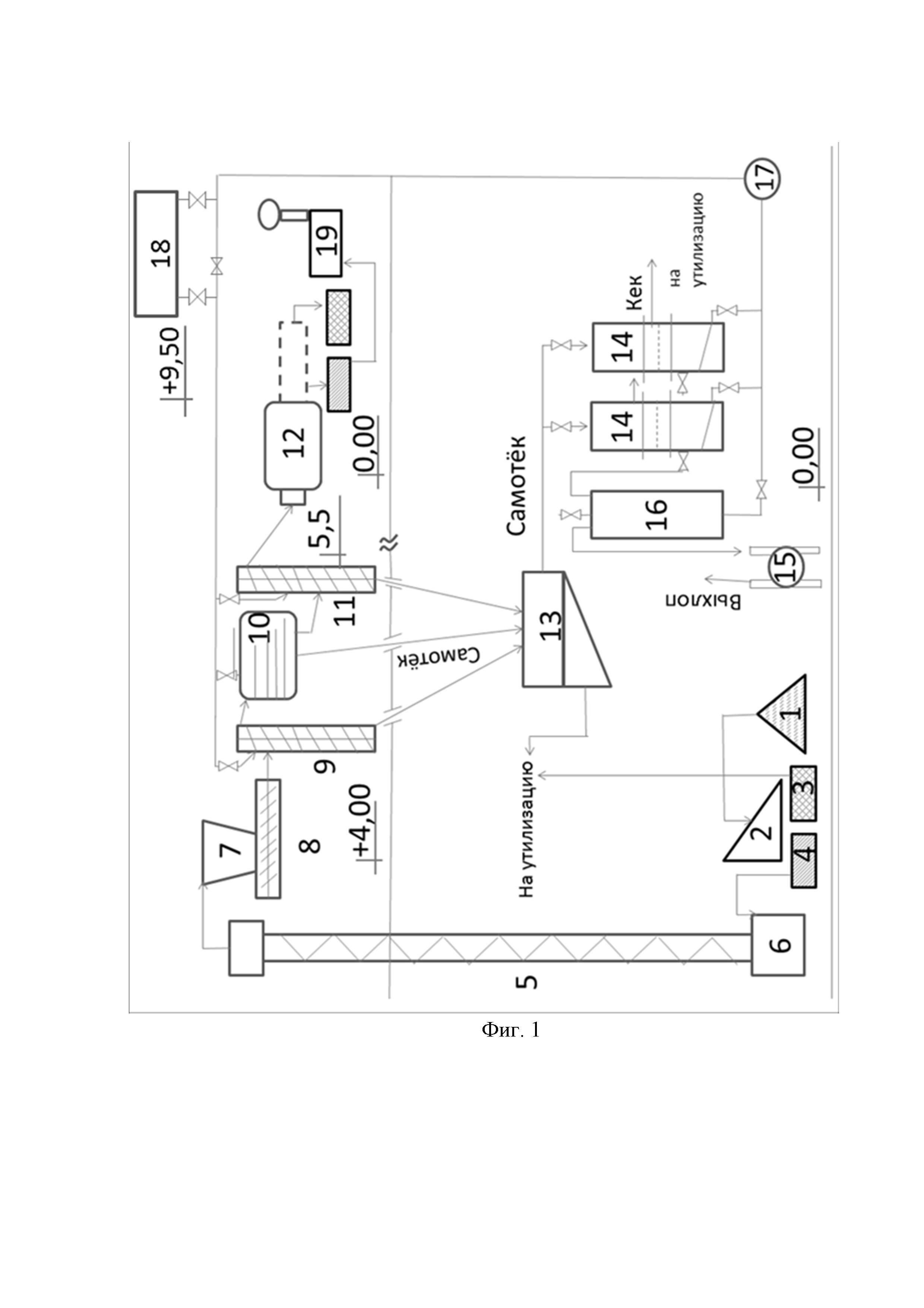
Как управлять
интеллектуальной собственностью
Чертежи 
2
Реферат

Предложенное изобретение относится к области регенерации отходов, образующихся при гидроабразивной резке материалов, и может быть использовано как в общем технологическом цикле резки, так и отдельно от установки гидроабразивной резки для регенерации используемых абразивов, в частности гранатового песка. Технологическая схема регенерации отработанного гранатового песка от гидроабразивной резки включает концентрационный стол и барабанную сушильную печь. Схема дополнительно содержит виброгрохот с двумя ёмкостями для сбора частиц, подъемник с ёмкостью, бункер со шнековым питателем, расходный бак с водой, два спиральных классификатора. Первый спиральный классификатор установлен с возможностью выгрузки крупной фракции на концентрационный стол, установленный с возможностью подачи потока частиц гранатового песка в зону подачи исходного питания второго спирального классификатора. Сливы концентрационного стола и двух спиральных классификаторов, выполненные в виде дренажных труб, направлены в ловушку взвешенных частиц, соединенную с двумя последовательно установленными нутч-фильтрами, выполненными с возможностью фильтрации сливаемой пульпы путем вакуумирования вакуум-насосом, оборудованным каплеотбойником. В качестве спиральных классификаторов используются классификаторы с непогруженной спиралью. Барабанная сушильная печь оборудована бутарой. Технический результат - повышение эффективности регенерации отработанного гранатового песка от гидроабразивной резки, а также снижение экологической нагрузки на окружающую среду. 2 з.п. ф-лы, 2 ил., 2 табл.

Формула изобретения

1. Технологическая схема регенерации отработанного гранатового песка от гидроабразивной резки, включающая концентрационный стол и барабанную сушильную печь, отличающаяся тем, что схема дополнительно содержит виброгрохот с двумя ёмкостями для сбора частиц, подъемник с ёмкостью, бункер со шнековым питателем, расходный бак с водой, два спиральных классификатора, при этом первый спиральный классификатор установлен с возможностью выгрузки крупной фракции на концентрационный стол, установленный с возможностью подачи потока частиц гранатового песка в зону подачи исходного питания второго спирального классификатора, при этом сливы концентрационного стола и двух спиральных классификаторов, выполненные в виде дренажных труб, направлены в ловушку взвешенных частиц, соединенную с двумя последовательно установленными нутч-фильтрами, выполненными с возможностью фильтрации сливаемой пульпы путем вакуумирования вакуум-насосом, оборудованным каплеотбойником.

2. Технологическая схема регенерации отработанного гранатового песка от гидроабразивной резки по п. 1, в которой в качестве спиральных классификаторов используются классификаторы с непогруженной спиралью.

3. Технологическая схема регенерации отработанного гранатового песка от гидроабразивной резки по п. 1, в которой барабанная сушильная печь оборудована бутарой.

Описание

[1]

Изобретение относится к области регенерации отходов, образующихся при гидроабразивной резке материалов и может быть использовано как в общем технологическом цикле резки, так и отдельно от установки гидроабразивной резки для регенерации используемых абразивов, в частности, гранатового песка.

[2]

Известна технологическая схема регенерации отработанного гранатового песка от гидроабразивной резки [патент CN 105922143 B, опубл. 15.05.2018], включающая в себя сушильную площадку, два последовательно установленных виброгрохота, оборудованные ситами с размером ячеек, соответственно, от 165 до 330 мкм и от 60 до 100 мкм, накопительный бункер с крошкой из обычной углеродистой стали или крошкой из Al2O3, сушильный шкаф, а также смеситель. Сущность способа, осуществляемого по данной технологической схеме, заключается в следующем: на сушильной площадке сушат твердую влажную массу, извлеченную из улавливающей ванны станка гидроабразивной резки, при этом сушат до тех пор, пока она не потеряет значительную часть влаги; далее – осуществляют грубое просеивание на виброгрохоте, оборудованном ситом с размером ячеек от 165 до 330 мкм, плюсовую фракцию отправляют на полигон, а минусовую фракцию отправляют на тонкое просеивание на следующем виброгрохоте, оборудованном ситом с размером ячеек от 60 до 100 мкм, после чего плюсовую фракцию сушат в сушильной печи в течение 1~5 часов при температуре от 60 до 200°С и в высушенный песок добавляют из накопительного бункера 2-5%(масс.) крошки из обычной углеродистой стали или крошки из Al2O3 и равномерно перемешивают смесителем, таким образом, получая абразивную смесь с более высокой режущей способностью относительно режущей способности нового гранатового песка.

[3]

Достоинством технологической схемы является простота осуществляемого по ней способа регенерации отходов гранатового песка, требуются только сита для просеивания, смеситель, накопительный бункер для подсыпки абразива и сушильная печь. Недостатком способа является длительность процесса, неудовлетворительное качество очистки гранатового песка от частиц разрезаемого материала, низкая степень извлечения – от 30 до 40 %, а также быстрая изнашиваемость сеток с размером ячеек менее 100 мкм.

[4]

Общими существенными признаками с заявляемым техническим решением является наличие сушильной печи, а также виброгрохота.

[5]

Известна технологическая схема регенерации отработанного гранатового песка от гидроабразивной резки [RU 2701017 C1, опубл. 24.09.2019], принятая за прототип, включающая в себя пульпонасос, накопительный бункер, оборудованный перемешивающим устройством, бак с водой, концентрационный стол, седиментационный бак для отстаивания, шнек, фильтрационную емкость конической формы, оборудованную сеткой и сливом для воды, а также барабанную сушильную печь. Сущность способа, осуществляемого по данной технологической схеме, заключается в следующем: пульпу гранатового песка закачивают в накопительный бункер пульпонасосом, разжижают ее водой, турбулизируют перемешивающим устройством, затем с постоянным расходом сливают турбулизированную смесь через дозатор на концентрационный стол, на котором продольными колебаниями стола и равномерной подачей смывной воды вдоль длинной стороны деки стола разделяют смесь на три массопотока: поток, содержащий крупнодисперсный гранатовый песок, поток, содержащий мелкодисперсный гранатовый песок, и поток с частицами разрезаемого материала. После разделения поток с крупнодисперсным гранатовым песком транспортируют шнеком в фильтрационную ёмкость для первичного обезвоживания, оборудованную сеткой с диаметром ячейки не менее 40 мкм, сушат в барабанной сушильной печи, после сушки расфасовывают. Потоки с мелкодисперсным гранатовым песком и частицами разрезаемого материала направляют в седиментационный бак на отстаивание.

[6]

Достоинством технологической схемы является высокая степень очистки отработанного гранатового песка.

[7]

Недостатком технологической схемы является нестабильная работа установки по очистке, т.к. на гидроабразивных станках с самодельными улавливающими ваннами для улавливания отработанных абразивов, отсутствует решетка, сепарирующая крупные обрезки обрабатываемых деталей от использованного абразива, поэтому в отходах гранатового песка периодически попадаются крупные обрезки (металлические, керамические, пластмассовые, деревянные и т.д.) диаметром свыше 10 мм. Крупные обрезки разрезаемых деталей забивают приемную воронку концентрационного стола, а также застревают на выходе из накопительного бункера, происходит заклинивание лопастей перемешивающего устройства в накопительном бункере, вследствие чего необходимо останавливать работу установки и вручную удалять крупные обрезки. Значительное содержание мелких частиц в отработанном гранатовом песке (около 30%(масс.) – частицы диаметром менее 70 мкм) при нестабильной работе концентрационного стола приводит к проскоку мелких частиц в целевую фракцию, что снижает КПД процесса последующей гидрорезки.

[8]

Общими существенными признаками с заявляемым техническим решением являются барабанная сушильная печь и концентрационный стол.

[9]

Задачей, на решение которой направлено данное изобретение, является создание технологической схемы регенерации отработанного гранатового песка от гидроабразивной резки, позволяющей дифференцировать гранатовый песок с диаметром частиц от 70 мкм и более от частиц гранатового песка с диаметром менее 70 мкм и от частиц разрезаемых материалов, тем самым снизив экологическую нагрузку на окружающую среду за счет снижения объемов добычи гранатового песка, а также за счет снижения объемов отработанного гранатового песка, депонируемого на полигонах.

[10]

Технический результат, получаемый при осуществлении изобретения, заключается в расширении арсенала технологических схем регенерации отработанного гранатового песка от гидроабразивной резки.

[11]

Технический результат достигается тем, что технологическая схема регенерации отработанного гранатового песка от гидроабразивной резки, включает концентрационный стол и барабанную сушильную печь, виброгрохот с двумя ёмкостями для сбора частиц, подъемник с ёмкостью, бункер со шнековым питателем, расходный бак с водой, два спиральных классификатора, при этом первый спиральный классификатор установлен с возможностью выгрузки крупной фракции на концентрационный стол, установленный с возможностью подачи потока частиц гранатового песка в зону подачи исходного питания второго спирального классификатора, при этом сливы концентрационного стола и двух спиральных классификаторов, выполненные в виде дренажных труб, направлены в ловушку взвешенных частиц, соединенную с двумя последовательно установленными нутч-фильтрами, выполненными с возможностью фильтрации сливаемой пульпы путем вакуумирования вакуум-насосом, оборудованным каплеотбойником.

[12]

Рекомендуется в качестве спиральных классификаторов использовать классификаторы с непогруженной спиралью.

[13]

Рекомендуется барабанную сушильную печь оборудовать бутарой.

[14]

Сущность изобретения поясняется следующими графическими материалами:

[15]

На фиг. 1 представлена аппаратурно-технологическая схема регенерации отработанного гранатового песка.

[16]

На фиг. 2 показаны стальные детали, которая получили, используя регенерированный гранатовый песок: a – при использовании фильеры для воды диаметром 250 мкм, b – при использовании фильеры для воды диаметром 350 мкм.

[17]

В технологической схеме виброгрохот используют для сепарации поступающего на регенерацию отработанного гранатового песка от всех крупных посторонних включений, а именно – обрезков разрезаемых деталей, которые могут привести к заклиниванию и абразивному износу лопастей шнека спирального классификатора. Заклинивание шнека спирального классификатора приводит к неравномерной подаче крупной фракции на концентрационный стол. При попадании обрезков разрезаемых деталей в приемную воронку концентрационного стола в приемном отсеке происходит перекрытие щелей подачи пульпы на концентрационный стол, в результате чего происходит переполнение приемного отсека и под действием возвратно-поступательных колебаний концентрационного стола пульпа интенсивно переливается на деку концентрационного стола, а также сливается на пол, то есть нарушается стабильный режим работы установки регенерации.

[18]

Классификатор с непогруженной спиралью перед концентрационным столом обеспечивает дезагрегацию агрегатов частиц отработанного гранатового песка и переход частиц во взвешенное в воде состояние за счет классификации. Высоту сливного порога изменяют в зависимости от требуемой крупности частиц в сливаемой пульпе. В результате классификации происходит осаждение частиц гранатового песка с диаметром более 70 мкм, а всё, что менее 70 мкм – уходит в слив классификатора с непогруженной спиралью.

[19]

На концентрационном столе пульпа делится на три фракции по плотности частиц и их размеру: тяжелая, легкая и целевая фракции. Тяжелая фракция представляет собой смесь частиц разрезаемых деталей с плотностью более 4,5 г/см3, поступающих на гидроабразивную резку. Легкая фракция стола представляет собой смесь отработанного гранатового песка с диаметром частиц менее 70 мкм и частиц разрезаемых деталей с плотностью менее 4,5 г/см3, поступающих на гидроабразивную резку. Около 50%(масс.) отработанного гранатового песка, поступающего на регенерацию, уходит в легкую фракцию и далее поступает с концентрационного стола на водооборотный узел. Целевая фракция представляет собой отработанный гранатовый песок с диаметром частиц более 70 мкм.

[20]

Классификатор с непогруженной спиралью после концентрационного стола предназначен для обезвоживания целевой фракции гранатового песка, тем самым снижая нагрузку на барабанную сушильную печь с бутарой. От того, как отрегулирован технологический процесс классификации, зависит производительность установки по регенерированному гранатовому песку. Результаты классификации при неизменности режимов транспортирования пульпы могут зависеть от общего количества и состава пульпы, поступающей в классификатор в единицу времени, и от дополнительного расхода воды в корыто классификатора.

[21]

Барабанная сушильная печь с бутарой предназначена для выполнения двух функций: сушка влажного регенерированного гранатового песка, а также сепарация сухого регенерированного гранатового песка от мусора. Сепарация сухого регенерированного гранатового песка от мусора необходима, так как при нестабильной работе концентрационного стола в целевую фракцию могут попасть посторонние частицы, например осеивание старой краски со стенок транспортировочной тары для отработанного гранатового песка, а также частицы разрезаемых деталей.

[22]

Назначение водооборотного узла, состоящего из ловушки взвешенных частиц, двух последовательно установленных нутч-фильтров, каплеотбойника и вакуум-насоса, заключается в обеспечении замкнутого водооборота и подготовке легкой и тяжелой фракций с концентрационного стола к вывозу на полигон. Сливаемая пульпа с концентрационного стола и классификаторов с непогруженной спиралью по дренажным трубам поступает в ловушку взвешенных частиц, которая предназначена для улавливания тяжелой фракции, а легкая фракция поступает на фильтрацию на нутч-фильтры. После заполнения ловушки тяжелой фракцией, технологический процесс останавливается для очистки ловушки, после чего извлеченный материал из ловушки вывозят на полигон.

[23]

Нутч-фильтры предназначены для очистки воды перед закачкой ее в расходный бак. Фильтрацию обеспечивает вакуум-насос, работающий с нутч-фильтрами через каплеотбойник, который препятствует проскоку фильтрата до вакуум-насоса.

[24]

Описание технологической схемы.

[25]

Технологическая схема регенерации отработанного гранатового песка от гидроабразивной резки (фиг. 1) состоит из места хранения отработанного влажного гранатового песка 1, виброгрохота 2 с ёмкостью 3 для частиц с диаметром более 5 мм и ёмкостью 4 для частиц с диаметром менее 5 мм, подъёмника 5 с ёмкостью 6 для отработанного влажного гранатового песка, очищенного от частиц с диаметром более 5 мм, бункера 7 со шнековым питателем 8. Выгрузочное окно шнекового питателя 8 расположено над зоной подачи исходного питания классификатора с непогруженной спиралью 9, люк выгрузки которого расположен над приемной воронкой концентрационного стола 10. Спиральный классификатор 11 установлен таким образом, чтобы целевая фракция с концентрационного стола 10 попадала в зону подачи исходного питания классификатора с непогруженной спиралью 11, люк выгрузки которого сочленен с наклонным патрубком, направленным в загрузочный узел барабанной сушильной печи с бутарой 12. Сливы с концентрационного стола 10 и спиральных классификаторов 9 и 11 выполнены в виде дренажных труб, направленных в ловушку взвешенных частиц 13, представляющей собой отстойник. Слив ловушки взвешенных частиц направлен в нутч-фильтры 14, а вакуум-насос 15 соединен с нутч-фильтрами 14 через каплеотбойник 16. С нутч-фильтрами соединен насос 17, выполненный с возможностью закачки фильтрата в расходный бак с водой 18.

[26]

Технологическая схема пригодна для переработки отработанного влажного гранатового песка с получением регенерированного, пригодного к повторному использованию гранатового песка, когда влажный отработанный гранатовый песок с примесью частиц обрабатываемых деталей из места хранения абразива 1 подается на виброгрохот 2, на котором сепарируются частицы с диаметром более 5 мм (обрезки разрезаемых деталей). В ходе сепарации все частицы с диаметром более 5 мм ссыпаются в ёмкость 3, содержимое которого при заполнении вывозится на полигон. Отработанный влажный гранатовый песок, очищенный от частиц с диаметром более 5 мм, пройдя сепарацию на виброгрохоте 2, попадает в ёмкость 4, а затем подаётся в емкость 6 подъемника 5, и попадает в бункер 7, откуда отработанный влажный гранатовый песок, очищенный от частиц с диаметром более 5 мм, равномерно подается шнековым питателем 8 в зону подачи исходного питания классификатора с непогруженной спиралью 9, в которую также подается вода из расходного бака с водой 18 для распульповывания массы отработанного гранатового песка, после распульповывания мелкая фракция пульпы сливается через сливной порог в нижней части корыта классификатора с непогруженной спиралью 9 и уходит в слив по дренажной трубе, попадая в ловушку взвешенных частиц 13. Осевшая на дно корыта классификатора 9 крупная фракция пульпы транспортируется спиралью вверх по корыту, обезвоживается и разгружается через люк выгрузки классификатора 9 в приемную воронку концентрационного стола 10, в которую также подается вода из расходного бака с водой 18 для распульповывания массы отработанного гранатового песка, после чего пульпа распределяется по поверхности деки концентрационного стола 10, осуществляющего возвратно-поступательные горизонтальные колебания, при этом под действием дифференциальных колебаний происходит постепенное продольно-поступательное движение пульпы, а также поперечное движение пульпы относительно перемещений концентрационного стола 10 потоком смывной воды осуществляется по поверхности деки концентрационного стола 10. Разделяемые частицы в зависимости от их удельного веса и крупности расслаиваются и движутся по деке концентрационного стола 10 с разными скоростями и направлением, образуя веер. Целевая фракция, представляющая собой отработанный гранатовый песок с диаметром частиц более 70 мкм, направляется в жёлоб для сбора регенерированного гранатового песка, откуда затем поступает в зону подачи исходного питания классификатора с непогруженной спиралью 11, в которую также подается вода из расходного бака с водой 18 для распульповывания массы регенерированного гранатового песка. При нестабильной работе концентрационного стола 10 в регенерированном гранатовом песке могут присутствовать частицы менее 70 мкм, которые удаляются на классификаторе 11 – мелкая фракция пульпы сливается через сливной порог в нижней части корыта классификатора 11 и уходит в слив по дренажной трубе, попадая в ловушку взвешенных частиц 13. Осевшая на дно корыта классификатора 11 крупная фракция пульпы транспортируется спиралью вверх по корыту, обезвоживается и разгружается через люк выгрузки классификатора, перемещаясь по наклонному патрубку в загрузочный узел барабанной сушильной печи с бутарой 12, при вращении которой влажный регенерированный гранатовый песок взаимодействует с теплоносителем, отдает влагу, после чего сепарируется в бутаре с размером ячеек 0,5 мм. Частицы гранатового песка с диметром менее 0,5 мм расфасовываются в мешки, стоящие на весах 19. Сливаемая пульпа с концентрационного стола 10 и спиральных классификаторов 9 и 11 попадает в ловушку взвешенных частиц 13. Тяжелая фракция оседает на дне ловушки 13, а взвешенная в воде легкая фракция в переливающемся через край ловушки 13 потоке воды попадает в нутч-фильтры открытого типа 14 сверху, а с противоположной стороны дна под фильтровальным материалом (в качестве которого можно использовать любую техническую ткань со средней плотностью 900 г/м2) вакуум-насосом 15 создается вакуум, под действием которого происходит разделение твердой и жидкой фаз. Вакуум-насос 15 работает с нутч-фильтрами 14 через каплеотбойник 16, который препятствует проскоку фильтрата до вакуум-насоса 15. Фильтрат с нутч-фильтра насосом 17 закачивается в расходный бак с водой 18.

[27]

Реализация способа.

[28]

Предлагаемый способ применялся для регенерации отработанного гранатового песка, используемого в процессе гидроабразивной резки различных деталей (керамика, листы ДВП, зеркала, листы черного металла, изделия из нержавейки). В гидроабразивной резке использовался гранатовый песок из Китая от поставщика – фирмы «Р-Гарнет», согласно ТУ 3988-003-76245879-2017 гранатовый песок представлен преимущественно минералом альмандином – Fe3Al2(SiO4)3 – 92-96%, диаметр зерен -315+150 мкм, плотность 4,1 г/см3, твердость по Моосу 7,5-8.

[29]

Исследование гранулометрического состава гранатового песка от поставщика, отработанного и регенерированного гранатового песка проводилось согласно ГОСТ 27562-87 методом ситового анализа – автоматически ситовым вибрационным анализатором АСВ-200, а также вручную с промывкой водой. Гранулометрический состав гранатового песка от поставщика и отработанного гранатового песка после гидроабразивной резки показан в таблице 1, откуда видно, что 62,3 % (масс.) частиц отработанного гранатового песка – это частицы с диаметром более 75 мкм, которые можно после сепарирования вернуть в цикл гидроабразивной резки.

[30]

Из улавливающей ванны станка гидроабразивной резки был собран влажный отработанный гранатовый песок (содержание воды – 10%(масс.)), и перевезен в бочках к месту регенерации. На виброгрохоте 2 сепарировали с расходом – 120 кг/час влажный отработанный гранатовый песок от частиц с диаметром более 5 мм (обрезки разрезаемых деталей). Все частицы с диаметром более 5 мм ссыпали в ёмкость 3, содержимое которой при заполнении вывозили на полигон. Отработанный влажный гранатовый песок без частиц с диаметром более 5 мм после сепарирования на виброгрохоте 2 из ёмкости 4 подавали в зону подачи исходного питания классификатора с непогруженной спиралью 9 и распульповывали водой из расходного бака с водой 18, мелкая фракция пульпы сливалась через сливной порог в нижней части корыта классификатора 9 с расходом – 20 кг/час, а крупная фракция пульпы транспортировалась спиралью классификатора 9 вверх по корыту, обезвоживалась и разгружалась с расходом – 100 кг/час через люк выгрузки классификатора 9 в приемную воронку концентрационного стола 10. На концентрационный стол 10 подавали воду из расходного бака с водой 18, при этом пульпа разделялась на деке концентрационного стола на три фракции: легкую, тяжелую и целевую. В целевую фракцию попадал отработанный гранатовый песок с размером частиц более 70 мкм с расходом – 70 кг/час, а тяжелая и легкая фракции поступали с расходом 30 кг/час в ловушку взвешенных частиц 13. Целевая фракция с концентрационного стола попадала в желоб для сбора регенерированного гранатового песка, откуда затем поступала в зону подачи исходного питания классификатора с непогруженной спиралью 11. Влажный регенерированный гранатовый песок сушили в барабанной сушильной печи при температуре 130°С. Выход регенерированного гранатового песка после сушки – 60 кг/час. После сушки провели ситовой анализ гранулометрического состава регенерированного гранатового песка, результаты которого представлены в таблице 1. В нутч-фильтрах в качестве фильтровального материала использовали бельтинг.

[31]

Таблица 1 – гранулометрический состав нового (от поставщика), отработанного и регенерированного гранатового песка

[32]

Фракция, мкмГранатовый песок от поставщика, % (масс.)Отработанный гранатовый песок, % (масс.)Регенерированный гранатовый песок, % (масс.)
+10010050,478,5
-100+7511,911,1
-75+4414,57,8
-4423,22,6

[33]

Были проведены испытания регенерированным гранатовым песком, полученным на установке регенерации, материал для испытаний был регенерирован из отработанного гранатового песка и имел следующие характеристики: влажность песка – 0%; форма гранул – остроугольная; истинная плотность материала – 4,1 г/см3. В качестве материала сравнения в контрольном опыте применен китайский гранатовый песок от поставщика «Р-гарнет», отвечающий требованиям ТУ 3988-003-76245879-2017.

[34]

Оборудование, используемое в ходе испытаний, а также параметры резки: гидроабразивный станок Tecnocut Idroline 1740; обрабатываемые детали: дюралевый лист (Д16Т) толщиной 16 мм, лист стали (Ст.3) толщиной 14 мм; давление воды: 225 МПа и 320 МПа; диаметр сапфировых фильер: 250 и 350 мкм.

[35]

Результаты испытаний резки деталей представлены в таблице 2. При резке регенерированным песком с фильерой для воды (сапфирная фокусирующая трубка) диаметром 350 мкм, которая используется для нового песка от поставщика, качество поверхности неудовлетворительное, наблюдалась большая шероховатость поверхности реза (фиг. 2b). Для устранения этого недостатка установили фильеру для воды диаметром 250 мкм, это позволило добиться качества резки (фиг. 2a), сопоставимое с качеством резки гранатовым песком от поставщика.

[36]

Таблица 2 – показатели гидроабразивной резки.

[37]

№ п/п12345
Тип
абразива
Гранатовый песок от поставщика Регенерированный гранатовый песок
Расход абразива,
г/мин
400400400400400
Скорость реза, мм/мин100801007070
Детальдюралевый листлист сталидюралевый листлист сталилист стали
Давление воды, МПа225320225225320
Диаметр фильеры, мкм350250350350250
Качество поверхности резаУдовлетворительноУдовлетворительноДопустимоДопустимоУдовлетворительно

[38]

Скорость резки и расход абразива не изменилась (табл. 2), соответственно, резка регенерированным гранатовым песком не будет вызывать ускоренный износ смесительной трубки станка гидроабразивной резки. Производительность процесса очистки заявляемым способом в проведенном эксперименте составила 2,0 т/сутки, что является показателем эффективности способа.

Как компенсировать расходы
на инновационную разработку
Похожие патенты