1. Стенд серий СВ-01 вибродиагностики подшипников буксовых узлов колесных пар вагонов подвижного состава, содержащий раму с опорными стойками, устройство подъема и вывешивания колесной пары, механизм разгона колесной пары с двигателями, на валах которых закреплены ролики, подводимые к колесной паре пневмоцилиндрами, механизм осевого нагружения, создающий усилие на буксовые подшипники колесных пар и вибродатчики для выявления дефектов подшипников буксовых узлов колесных пар, соединенные с измерительной системой, отличающийся тем, что стенд содержит устройство для фиксации редуктора колесной пары вагона подвижного состава.2. Стенд по п.1, отличающийся тем, что содержит дополнительные вибродатчики, размещаемые на корпусе редуктора, для выявления дефектов подшипников и зубчатой передачи редуктора колесной пары вагона подвижного состава.3. Стенд по п.1, отличающийся тем, что устройство для фиксации редуктора колесной пары вагона подвижного состава выполнено в виде опоры, содержащей полку, в которую помещается хвостовик редуктора, закрепляемый с помощью фиксатора.4. Стенд по п.1, отличающийся тем, что устройство для фиксации редуктора колесной пары вагона подвижного состава выполнено в виде вертикально расположенного стержня с конусом в верхней его части, на который насаживается кронштейн редуктора.
1. Стенд серий СВ-01 вибродиагностики подшипников буксовых узлов колесных пар вагонов подвижного состава, содержащий раму с опорными стойками, устройство подъема и вывешивания колесной пары, механизм разгона колесной пары с двигателями, на валах которых закреплены ролики, подводимые к колесной паре пневмоцилиндрами, механизм осевого нагружения, создающий усилие на буксовые подшипники колесных пар и вибродатчики для выявления дефектов подшипников буксовых узлов колесных пар, соединенные с измерительной системой, отличающийся тем, что стенд содержит устройство для фиксации редуктора колесной пары вагона подвижного состава. 2. Стенд по п.1, отличающийся тем, что содержит дополнительные вибродатчики, размещаемые на корпусе редуктора, для выявления дефектов подшипников и зубчатой передачи редуктора колесной пары вагона подвижного состава. 3. Стенд по п.1, отличающийся тем, что устройство для фиксации редуктора колесной пары вагона подвижного состава выполнено в виде опоры, содержащей полку, в которую помещается хвостовик редуктора, закрепляемый с помощью фиксатора. 4. Стенд по п.1, отличающийся тем, что устройство для фиксации редуктора колесной пары вагона подвижного состава выполнено в виде вертикально расположенного стержня с конусом в верхней его части, на который насаживается кронштейн редуктора.
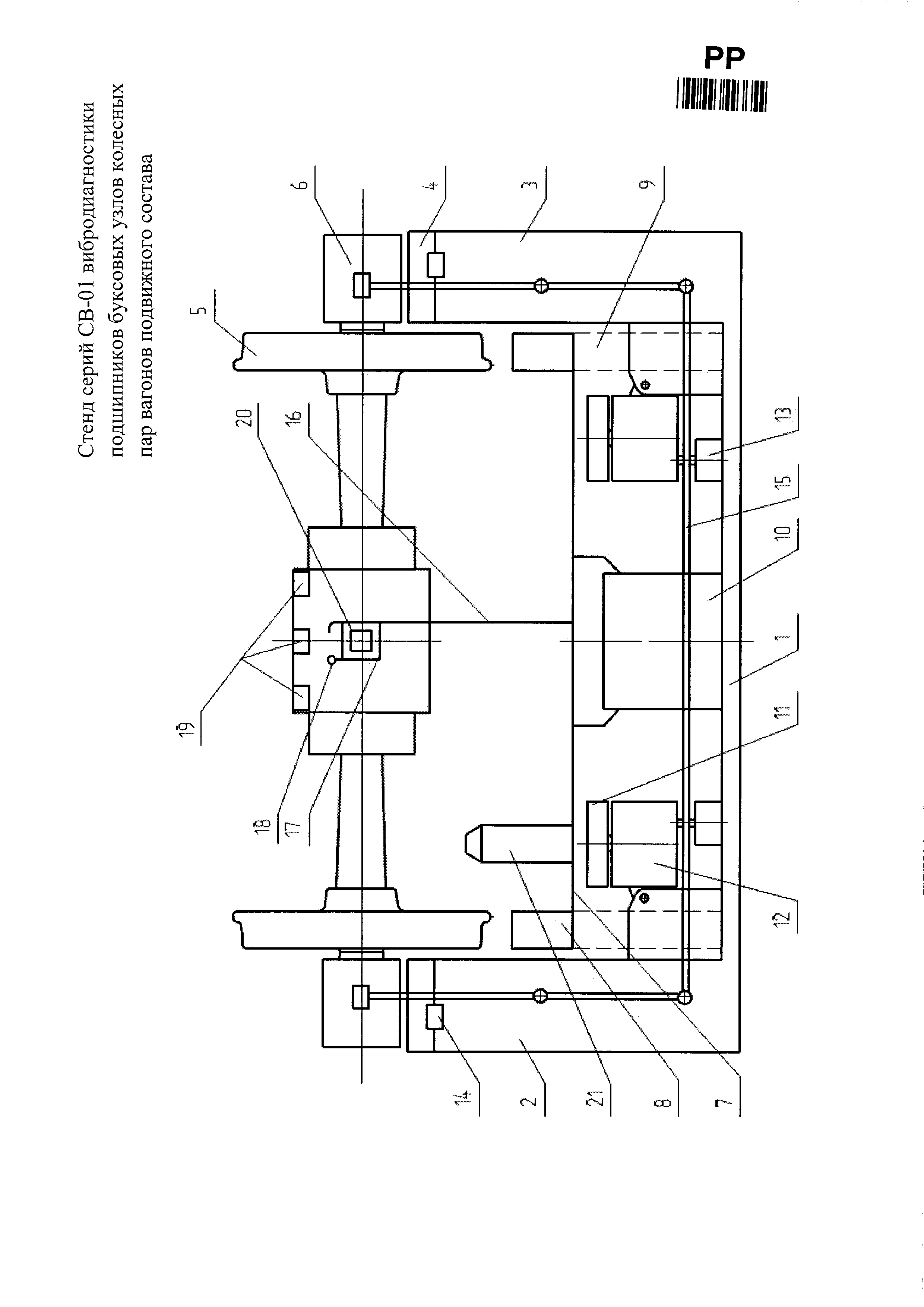
Полезная модель относится к железнодорожному транспорту и может быть использована для выявления дефектов (неисправностей) в подшипниках буксовых узлов колесных пар вагонов подвижного состава, и в подшипниках и зубчатых передачах редукторов колесных пар вагонов подвижного состава с помощью измерений виброаккустических сигналов и их анализа на основе использования компьютерных технологий. Известен комплекс вибродиагностики буксовых узлов колесных пар подвижного состава, содержащий раму с опорными стойками, подъемное устройство для вывешивания колесной пары, механизм разгона колесной пары, ролики, закрепленные на валах электродвигателей, пневмоцилиндры для подведения роликов к колесной паре, вибропреобразователи, соединенные с измерительной системой и средство осевого нагружения колесной пары /Патент РФ №2053348, кл. Е21В 41/02, 1996/. Известный комплекс вибродиагностики буксовых узлов колесных пар по совокупности существенных признаков является наиболее близким к заявляемой полезной модели и выбран в качестве ближайшего аналога. Недостатком аналога является невозможность диагностирования колесных пар с редуктором, обусловленная отсутствием устройства для фиксации редуктора колесной пары вагона подвижного состава. Техническим результатом предлагаемой полезной модели является улучшение технических характеристик стенда, за счет увеличения типов диагностируемых колесных пар, в том числе с редуктором. Указанный технический результат достигается тем, что в стенде серий СВ-01 вибродиагностики подшипников буксовых узлов колесных пар вагонов подвижного состава, содержащем раму с опорными стойками, устройство подъема и вывешивания колесной пары, механизм разгона колесной пары с двигателями на валах которых закреплены ролики, подводимые к колесной паре пневмоцилиндрами, механизм осевого нагружения, создающий усилие на буксовые подшипники колесных пар и вибродатчики для выявления дефектов подшипников буксовых узлов колесных пар, соединенные с измерительной системой, введено устройство для фиксации редуктора колесной пары вагона подвижного состава. Кроме того стенд снабжен дополнительными вибродатчиками, размещаемыми на корпусе редуктора, для выявления дефектов подшипников и зубчатой передачи редуктора колесной пары вагона подвижного состава. Устройство для фиксации редуктора колесной пары вагона подвижного состава, может быть выполнено в виде опоры содержащей полку, в которую помещается хвостовик редуктора, закрепляемый с помощью фиксатора. Устройство для фиксации редуктора колесной пары вагона подвижного состава, может быть выполнено в виде вертикально расположенного стержня с конусом в верхней его части, на который насаживается кронштейн редуктора. Полезная модель поясняется чертежом, на котором изображен общий вид стенда серий СВ-01 вибродиагностики подшипников буксовых узлов колесных пар вагонов подвижного состава. Стенд содержит раму 1, жестко связанные с ней опорные стойки 2 и 3, в верхней части которых расположены амортизационные площадки 4, на амортизационные площадки 4 устанавливается колесная пара 5 своими буксами 6. На чертеже показана колесная пара 5 с редуктором в средней части оси. На стенд также можно устанавливать колесную пару без редуктора (на чертеже не показана), или колесную пару с редуктором в левой (правой) части оси (на чертеже не показана). Устройство подъема и вывешивания колесной пары представляет собой подвижную верхнюю раму 7, на которой закреплены рельсы 8 для установки на них колесной пары 5, имеющей возможность вертикального перемещения по направляющим 9 посредством пневмоцилиндра 10. Стенд содержит также механизм разгона колесной пары 5, включающий двигатели 12 на валах которых закреплены ролики 11, подводимые к колесной паре 5 пневмоцилиндрами 13. В амортизационных площадках 4 расположены вибро датчики 14, соединенные с измерительной системой (на чертеже не показана). Кроме того стенд содержит механизм осевого нагружения 15 создающий усилие на буксовые подшипники 6 колесной пары 5. Стенд снабжен закрепленным на подвижной верхней раме 7, расположенным вертикально устройством для фиксации редуктора колесной пары вагона подвижного состава 16, в полку 17 которого помещается хвостовик редуктора 20 и закрепляется с помощью фиксатора 18. В зависимости от типа и расположения редуктора на оси колесной пары устройство для фиксации редуктора колесной пары вагона подвижного состава 16 может быть выполнено в виде вертикально расположенного стержня с конусом в верхней его части 21, закрепленного на подвижной верхней раме 7, на который насаживается кронштейн редуктора. Дополнительные вибродатчики 19, размещаемые на корпусе редуктора необходимы для выявления дефектов подшипников и зубчатой передачи редуктора колесной пары пассажирского вагона. Работа стенда серий СВ-01 вибро диагностики подшипников буксовых узлов колесных пар вагонов подвижного состава осуществляется следующим образом. Колесную пару 5 устанавливают на рельсы 8 подвижной верхней рамы 7 с помощью кран-балки (на чертеже не показана) или накатом вручную, хвостовик редуктора 20 при этом помещают в полку 17 устройства для фиксации редуктора колесной пары вагона подвижного состава 16 и закрепляют с помощью фиксатора 18 и устанавливают вручную вибродатчики 19 на корпусе редуктора, после чего производят опускание колесной пары 5 опорными площадками букс 6, на амортизационные площадки 4, расположенные на опорных стойках 2 и 3. Установка колесной пары без редуктора (на чертеже не показана) осуществляют накатом вручную, устройство для фиксации редуктора колесной пары вагона подвижного состава 16 при этом перемещают в горизонтальное положение (на чертеже не показано) и дополнительные вибродатчики 19 не устанавливают. В остальном процедура установки соответствует вышеприведенному абзацу. Установка колесной пары с редуктором в левой (правой) части оси (на чертеже не показана) осуществляют с помощью кран-балки (на чертеже не показана), устройство для фиксации редуктора колесной пары вагона подвижного состава 16 при этом перемещают в горизонтальное положение (на чертеже не показано), а на стержень с конусом в верхней его части 21, насаживают кронштейн редуктора, и устанавливают вручную вибродатчики 19 на корпусе редуктора, после чего производят опускание колесной пары 5 опорными площадками букс 6, на амортизационные площадки 4, расположенные на опорных стойках 2 и 3. Выдвижением штоков пневмоцилиндров 13 подводят ролики 11 к поверхностям реборд колесной пары 5 и включают двигатели 12. Далее колесную пару 5 разгоняют до частоты вращения не менее 300 об/мин, частота вращения при этом считывается оптическим бесконтактным датчиком (на чертеже не показан). После чего после чего задвиганием штоков пневмоцилиндров 13 ролики 11 отводятся и тормозятся. Затем включают в действие механизм осевого нагружения 15 для создания осевой нагрузки на буксы к центру или от центра перпендикулярной оси колесной пары. При этом происходит процесс торможения за счет сил трения и частота вращения колесной пары 5 падает. При достижении контрольной частоты вращения колесной пары 5 производится снятие вибрационных характеристик с помощью вибродатчиков 14 и 19, значения которых отображаются на мониторе измерительной системы (на чертеже не показана). По полученным значениям делаются выводы о состоянии подшипников буксовых узлов колесных пар вагонов подвижного состава, подшипников и зубчатых передачах редукторов колесных пар вагонов подвижного состава. Торможение колесной пары 5 осуществляется путем подвода к ней подвижной верхней рамы 7. При диагностике колесной пары без редуктора (на чертеже не показана), снятие вибрационных характеристик происходит только с помощью вибродатчиков 14, и по полученным значениям делаются выводы о состоянии подшипников буксовых узлов колесной пары вагона подвижного состава. В остальном процедура диагностики соответствует вышеприведенному абзацу.