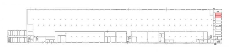
Складское помещение 41.7 м²

Складские
ID: 150330
Москва, улица Генерала Дорохова
41.7 м2
Площадь
1
Этаж

Описание

Предлагается в аренду складское помещение площадью 41.7 кв. м.
Расположение: ЗАО, г. Москва, ул. Генерала Дорохова, дом 6.

Характеристики: стены - окрашены, пол - ровный бетон, металлопластиковые окна.
Помещение расположено на 1-м этаже здания.

Услуги: цифровая телефония, высокоскоростной интернет.
Есть всё необходимое оснащение (отопление, освещение, электроснабжение).

Закрытая территория с пропускным режимом, имеется парковка, кафе, продуктовый магазин.
Охрана 24/7.

Арендная ставка: 1 599 руб. за 1 кв.м. в месяц (вкл. НДС).
Москва, улица Генерала Дорохова
1 599 ₽
кв.м за месяц
Контактные данные
Похожие помещения