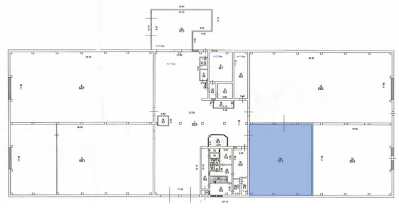
Производственно-складское помещение 277.2 м²

Промышленные
Складские
ID: 150384
Москва, Ступинский проезд, 1Ас3
277.2 м2
Площадь
1 из 1
Этаж

Описание

Предлагается в аренду производственно-складское помещение общей площадью 277,2 кв.м.

Технические характеристики:
• Высота потолка:
- до перекрытия – 7,6 метров
- до ригеля – 5,2 метра
• Нагрузка на пол – 3 т/кв.м
• Электрическая мощность – 1 кВт/кв.м
• Водоснабжение – возможно подвести из МОП
• Канализация – возможно подвести из МОП

Также на территории производственно-складского комплекса есть возможность аренды офисных помещений.

Арендная ставка: 1 350 руб. за 1 кв.м + OPEX (120 руб. за 1 кв.м).
Москва, Ступинский проезд, 1Ас3
1 470 ₽
кв.м за месяц
Контактные данные
Похожие помещения