Производственный комплекс Хованский 4200.86 м²

Промышленные
Складские
ID: 150382
Москва, Новомосковский административный округ, район Коммунарка, деревня Николо-Хованское, Проектируемый проезд № 8343
4200.86 м2
Площадь
1 из 3
Этаж

Описание

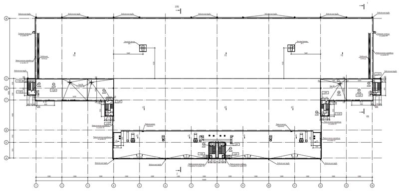
Сдается в аренду производственный комплекс Хованский, расположенный на земельном участке площадью 1,9204 ГА. Общая площадь складского комплекса: 14 307,42 кв.м.

Площадь складского помещения составляет 8 401,71 кв.м. Есть возможность деления приблизительно по 4 000 кв.м и 2 000 кв.м.
Склад (отметка 0):
Площадь - 8 401,71 м2
Рампа, пандус - 390,09
Высота до фермы - 13,025 м
В коньке более - 16,5 м
Нагрузка на полы - 8 т/м2

На втором и третьем этажах расположено несколько офисов. Их площадь варьируется от 430 до 2160 кв.м.

Второй этаж (отметка + 6,150):
Площадь - 2 038,78 м2
Мезонин - 1102,36 м2
Офис - 936,42 м2
Высота - 3,5 м
Нагрузка на полы - 3 т/м2

Третий этаж (отметка + 9,900):
Офис - 2 162,58 м2
Высота - 3,63 м

Офис - 429,40 м2
Высота - 3,9 м ( от уровня чистого пола до низа плиты перекрытия)

Площадь технических помещений - 884,86 кв.м.

Арендная ставка: 21 000 руб. за 1 кв.м в год (НДС не вкл., OPEX вкл.).

*Электричество - 300 кВт (с возможностью увеличить 100- 150 кВт за счет арендатора)
* Все коммуникации центральные
* Секционные ворота Doorhan
* Уравнительные платформы с двумя домкратами Doorhan
* Кровля по технологии Технониколь с расширенной гарантией 15 лет
* Высокая энергоэффективность здания: сэндвич- панели 150 мм, дополнительное утепление кровли и периметра здания,использование энергосберегающих ламп, датчиков движения)

Зона разгрузки:
* Количество доков - 14, включая 2 дока для спецтехники

* Покрытие проезжей части выполнено из двухслойного асфальтобетона на бетонном основании.
* С лицевой части складского комплекса, предусмотрено два въезда/ выезда оборудованные
откатными воротами, а также двумя шлагбаумами, включая КПП.
* Видео наблюдение по периметру
* Парковка на территории складского комплекса

Количество малотоннажных парковочных мест, не входящих в базовую ставку: легковые м/м в кол-ве 38 шт.
Количество крупнотоннажных парковочных мест, не входящих в базовую ставку: крупнотоннажные м/м в кол-ве 6 шт. (есть возможность увеличить размещение парковочных мест на территории до 100 мест, размером 6*3)
Москва, Новомосковский административный округ, район Коммунарка, деревня Николо-Хованское, Проектируемый проезд № 8343
21 000 ₽
кв.м. за год
Контактные данные
Похожие помещения