Производственное помещение 3117 м²

Промышленные
ID: 150386
Москва, 6-я Радиальная улица, 17с1
3117 м2
Площадь
1 из 2
Этаж

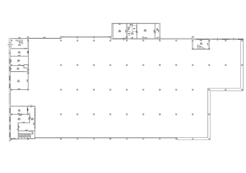
Описание

🏭 Ключевые параметры:
• Общая площадь: 3 117 м²
• Арендная ставка: 1 550 руб./м²/месяц (с НДС)
• Ежемесячный платеж: 4 831 350 руб. (аренда)

📐 Параметры:
• Основной цех: 2 562,9 м² с потолками 6 м — идеально для высокого оборудования, стеллажей и производства
• Антресоль: 90,9 м² (потолки 3 м) — под офисы, бытовые зоны или хранение
• Офис: 176 м² (потолки высотой 3 м, окна)
• Вспомогательные комнаты: 287,2 м² • Нагрузка на перекрытия: 2 000 кг/м²
• 1 этаж (отдельный вход) • Ворота: 3 шт. (1 шт. — 2.9 х 2.4 и 2шт. — 3.6 х 4.17)
• Санузел в блоке (возможна организация душевых) • Мощность: 200 кВт с возможностью увеличения

💡 Коммунальные и эксплуатационные расходы (OPEX):
• Отопление (только зимой): 200 859,48 руб./мес.
• Эксплуатация (ОРЕХ):
— Летний период: 280 530,00 руб./мес.
— Зимний период: 314 817,00 руб./мес.
• Электричество и вода: оплата по счетчикам

🌟 КОМФОРТНАЯ ИНФРАСТРУКТУРА ДЛЯ СОТРУДНИКОВ
• Транспортная доступность: Организованный бесплатный шаттл от м. Царицыно.
• Парковка: Собственная оборудованная парковочная зона.
• Питание: На территории работает качественная кафе-столовая.
• Кофе-точка для быстрых перерывов.
• КластерКлаб: пространство для сотрудников, оборудованное раздевалками, душевыми, зонами отдыха (с марта 2026 г.).
Москва, 6-я Радиальная улица, 17с1
4 831 350 ₽
общая за месяц
Контактные данные
Похожие помещения