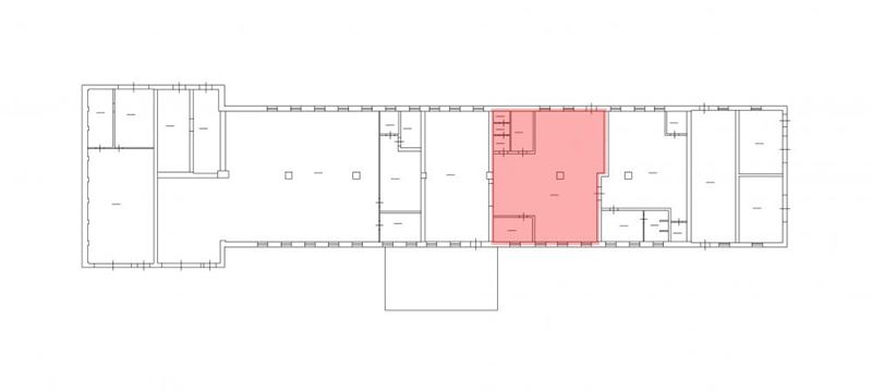
Производственное помещение 143.2 м²

Промышленные
ID: 150328
Москва, улица Генерала Дорохова
143.2 м2
Площадь
1
Этаж

Описание

Предлагается в аренду производственное помещение площадью 143,2 кв. м.
Расположение: г. Москва, ул. Генерала Дорохова, д. 6 (первый этаж, отдельный вход с улицы). Объект находится в складском комплексе вблизи станции метро "Давыдково".

В помещении подведены основные коммуникации: отопление, освещение и электроснабжение.
Также доступна возможность подключения интернета и телефонии.

Арендная ставка: 1 599 руб. за 1 кв.м. в месяц (вкл. НДС).
Москва, улица Генерала Дорохова
1 599 ₽
кв.м за месяц
Контактные данные
Похожие помещения