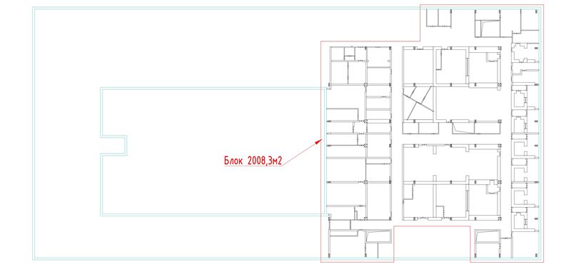
Офисное помещение 2008.3 м²

Офисы
ID: 147647
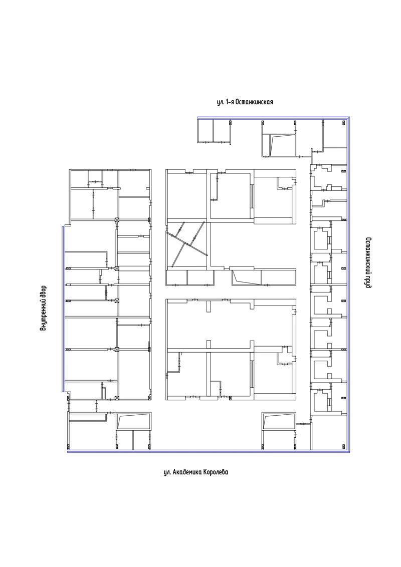
Москва, улица Академика Королёва, 12
2008.3 м2
Площадь
8 из 13
Этаж

Описание

Предлагаются в аренду помещения в Телецентре «ОСТАНКИНО» по адресу: г. Москва, ул. Академика Королёва, д. 12.

Площади: от 30 до 2000 м².
Типы помещений: офисные блоки и технологические помещения.
Ставка аренды за офис: 22 000 руб. за 1 кв.м. в год (не вкл. НДС, эксплуатационные расходы и коммунальные платежи).
Варианты отделки: turnkey, built to suit, fit out.
Срок аренды: от трех лет.

Преимущества:
• Телецентр – легендарный объект на карте города, визитная карточка Москвы
• Статус объекта «Технопарк Москвы»
• Федеральная форма собственности – надежность и прозрачность сделок
• Юридическое сопровождение на всех этапах работы
• Персональный менеджмент, быстрая калькуляция, дополнительные сервисы

Особенности объекта: гибкая конфигурация офисных блоков, собственные зоны парковки, пропускная система и эксплуатация 24/7, автоматическое пожаротушение, собственный дата-центр, приточно-вытяжная вентиляция, мультизональные системы кондиционирования, точки питания, магазины, зоны рекреации, банки, службы быта и сервисов, лифты с системой интеллектуального распределения пассажиропотоков, зарядка электромобилей.

Безопасность: Росгвардия + охранное предприятие.

Транспортная доступность: 10 минут на машине от ТТК, 10 минут пешком от метро «Бутырская», 5 минут пешком от МЦД-3 «Останкино».
Москва, улица Академика Королёва, 12
22 000 ₽
кв.м. за год
Контактные данные
Похожие помещения